広島県廿日市市木材港北7-20
でんわ (0829)32-3380  FAX (0829)32-3385

メニュー

共伸ブログ
2018.05.07  製作実例


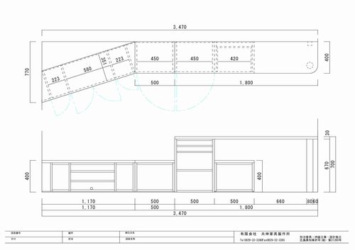
製作納品後、お客様より画像をいただきました

ヒノキ材のテレビ台と机です

お客様のご要望を伺い、家具図を描き、見積、打ち合わせ、製作、納品

時間はかかりますが、以上のような流れで家具を製作します

 

一覧に戻る≫